ZWS型振網篩產品概述:
ZWS型振網篩原名靜態篩。適用于松散的復合肥料及其他松散的細物料進行分級。本系列產品的生產能力大,振動負荷小,噪聲低,防塵條件好,維護方便。 ZWS型振網篩適用于對松散的復合肥料及其它松散的細物料進行分級。 目前已應用于國內大型的磷銨工廠及復合肥料工廠。
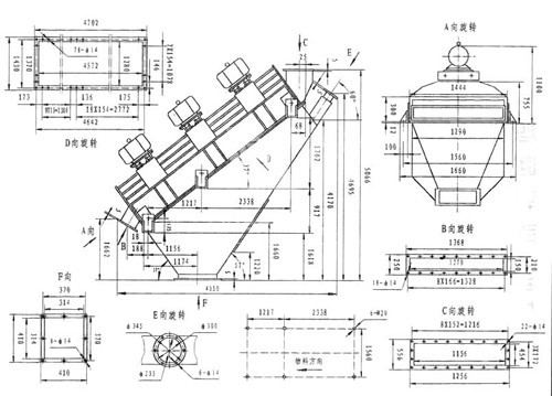
ZWS型振網篩適用于對松散的復合肥料及其它松散的細物料進行分級。 ZWS型振網篩是吸取美國先進技術自行設計制造的,以振動電機做為振動源,牽引篩網及篩框振動,實現物料分級。ZWS振網篩由給料器、篩箱篩面機體料斗和振網裝置組成。材料由給料器均勻給到篩面,分成篩上產品與篩下產品(單層篩)。本系列振網篩以振動電機為振動源,牽引篩網上下振動,篩機振幅可調,以適應不同物料的分級。篩網的振動,一方面可防止篩網堵塞,同時使物料拋起向前彈跳實現分級,因而振網篩的篩分效率高。
ZWS型振網篩產品特點
ZWS型振網篩是以振動電機做為振動源,牽引篩網及篩框振動,實現物料分級。ZWS振網篩由給料器、篩箱篩面機體料斗和振網裝置組成。材料由給料器均勻給到篩面,分成篩上產品與篩下產品(單層篩)。本系列振網篩以振動電機為振動源,牽引篩網上下振動,篩機振幅可調,以適應不同物料的分級。篩網的振動,一方面可防止篩網堵塞,同時使物料拋起向前彈跳實現分級,因而振網篩的篩分效率高。 ZWS型振網篩主要特點: 1.密封防塵,維修方便。 2.篩機振幅可調,篩分效率高。 3.生產能力大,動負荷小,噪音低。
振網篩日常維護
1、建議制作支撐架,以掛吊備用篩面。
2、每班檢查篩格壓緊裝置,如有松動則應壓緊。
3、經常檢查密封條,發現磨損或有缺陷應該及時更換。
4、篩格應該經常取出,定期檢查篩面是否破損或凹凸不平,篩孔是否堵塞等。
5、每班檢查進料箱的連接是否松動,如果間隙變大,引起碰撞,會使設備破裂。
6、振動篩雖然無需潤滑油,每年仍然需要大修一次,更換襯板,對兩道篩面進行修整等。振動電機要拆下檢查,并給電機軸承換油,如果軸承損壞,則要更換7、每班檢查篩體支撐裝置,觀察中空橡膠墊有無明顯變形或者脫膠現象,當橡膠墊破損或者過渡壓扁時,應同時更換兩塊中空橡膠墊。






客服1